ABOUT US
PROJECTS PORTFOLIO
PERSONNEL
EMPLOYMENT
ORDER FORM
Contact
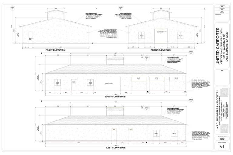
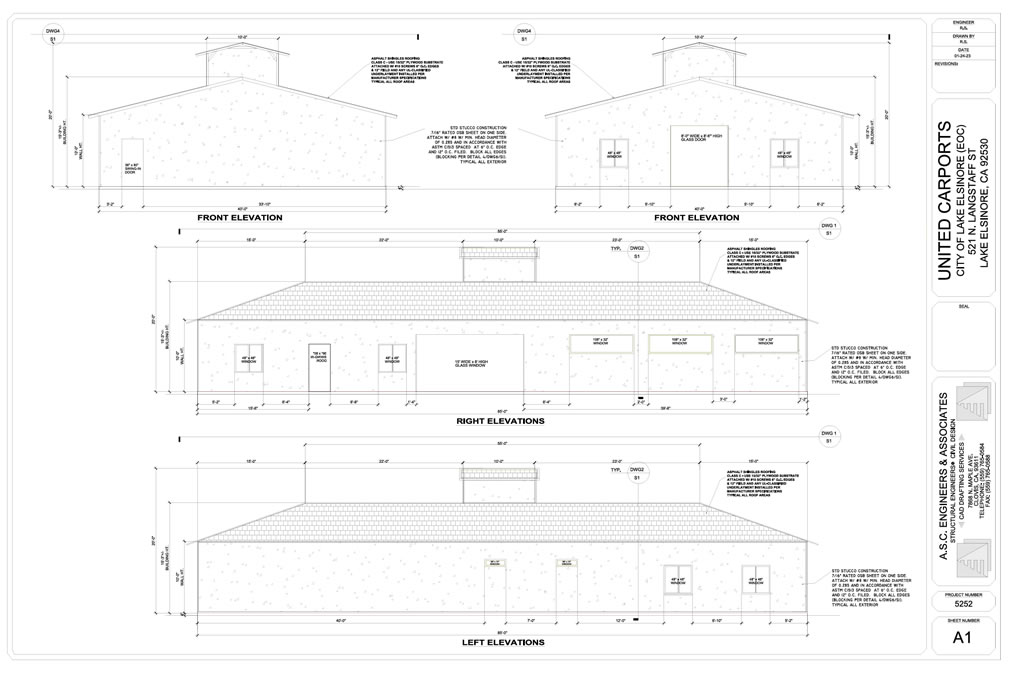
UNITED CARPORTS, LLC
Back To Portfolio
About
Projects Portfolio
Personnel
Employment
Contact
Residential
Commercial
Industrial
Metal Buildings
Order Form